CAD- UND BIM-SERVICE
Zeichnerische Unterstützung in 2D und 3D-BIM für Leistungsphasen 1-5
Ihr Partner für LPH 1-5
Ob Entwurfs-, Genehmigungs- oder Ausführungsplanung – unser BIM- und CAD- Service liefert Ihnen exakt das, was Sie für jede Projektphase benötigen. Wir arbeiten mit modernsten CAD- und BIM- Tools und passen uns nahtlos an Ihre Anforderungen an. So sorgen wir für ein Höchstmaß an Präzision und Effizienz in der Planerstellung.
Verwendete Software:
Vectorworks Architect, Autodesk Revit, Graphisoft ArchiCAD, Nemetschek Allplan
Leistung im Detail

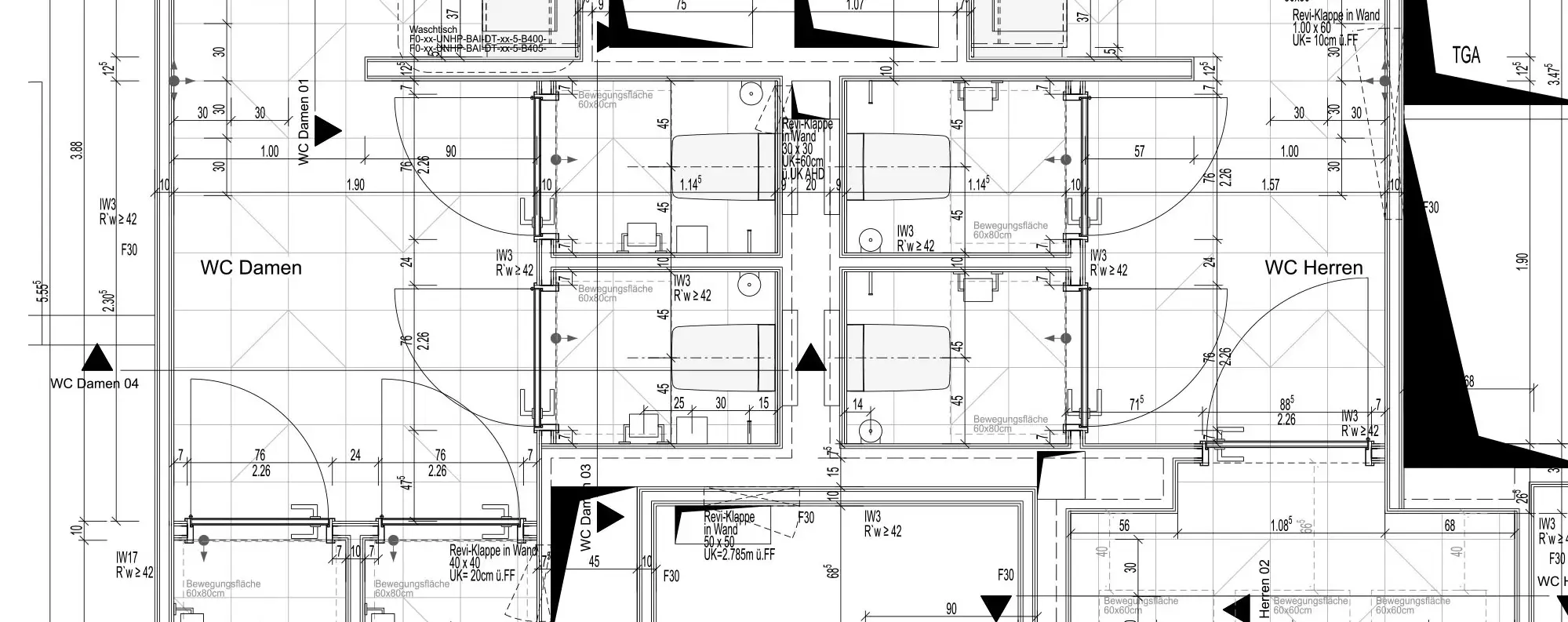
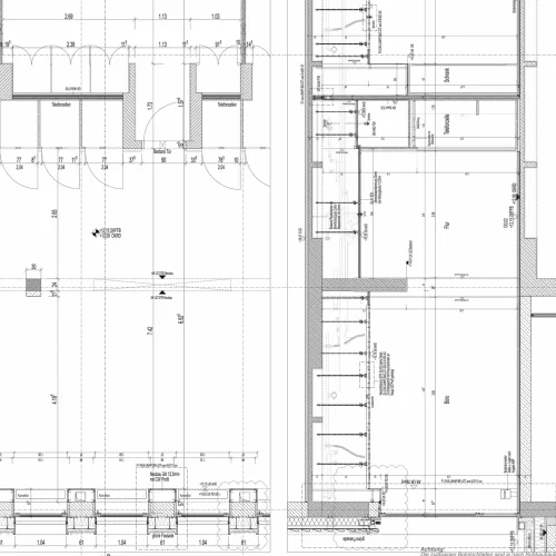
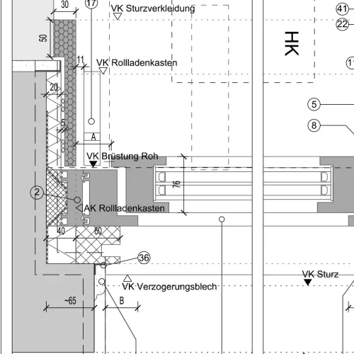
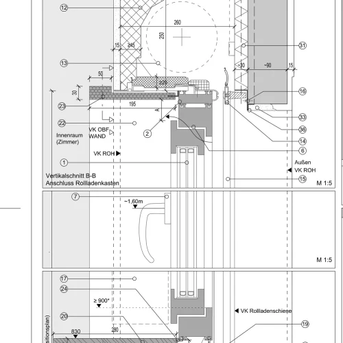
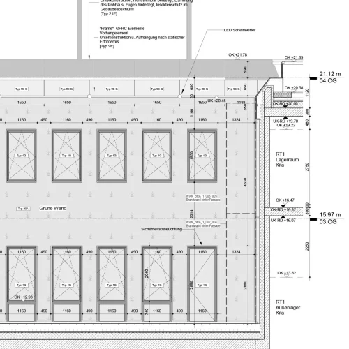
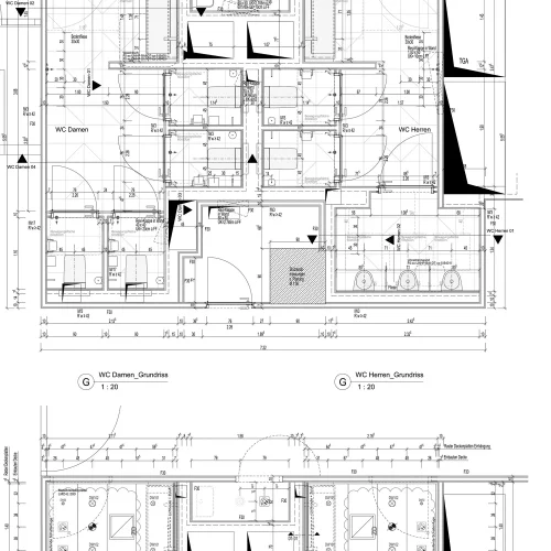
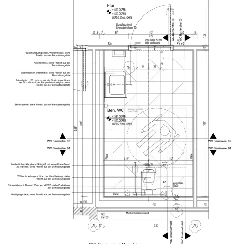
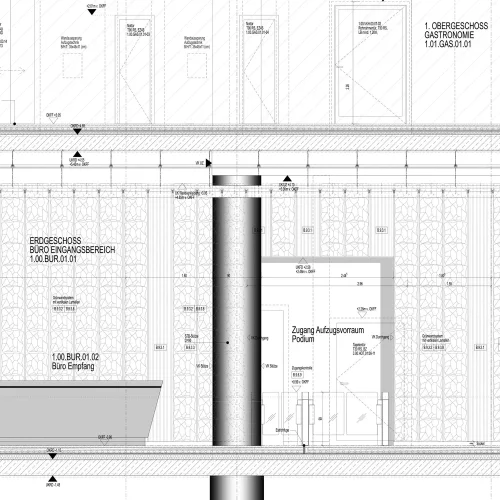
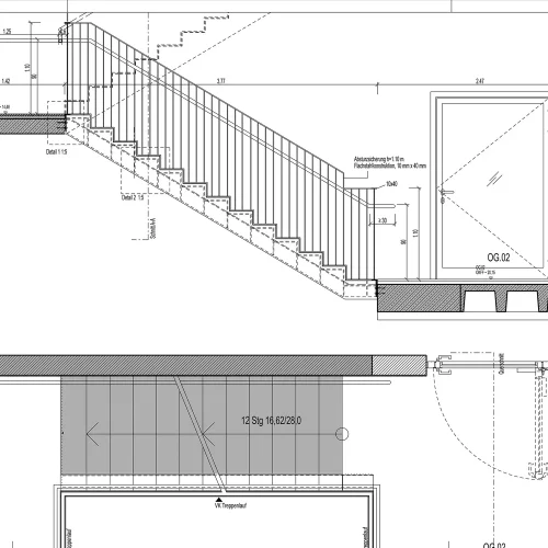
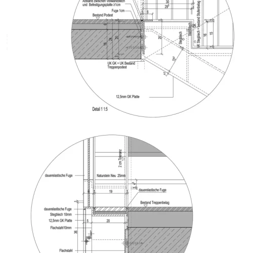
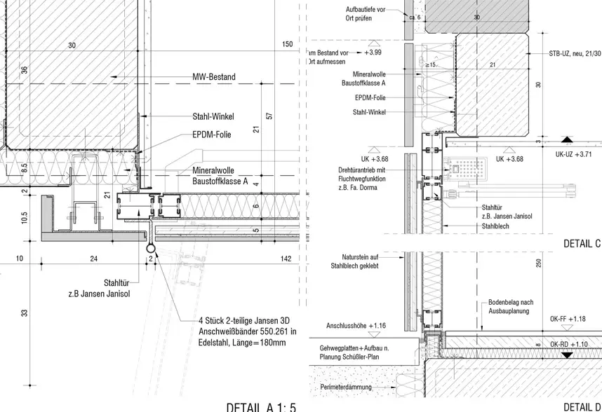
Wir erstellen präzise Detail- und Ausführungspläne, die alle bautechnischen und architektonischen Anforderungen berücksichtigen. Unser Fokus liegt auf Klarheit und Genauigkeit, um eine problemlose Umsetzung vor Ort zu gewährleisten.
Unser Leistungsumfang:
- Entwicklung von Detailzeichnungen für Knotenpunkte, Anschlüsse und spezifische Bauteile.
- Erstellung von Ausführungsplänen gemäß den Anforderungen der VOB und HOAI.
Vorteile für Ihr Projekt:
- Sicherstellung der baulichen Qualität durch präzise Planunterlagen.
- Vermeidung von Missverständnissen auf der Baustelle durch klare und vollständige Pläne.
Zusätzliche Informationen:
- Zusammenarbeit mit Fachplanern zur Integration technischer Anforderungen.
- Unterstützung bei der Kommunikation mit Bauausführenden.

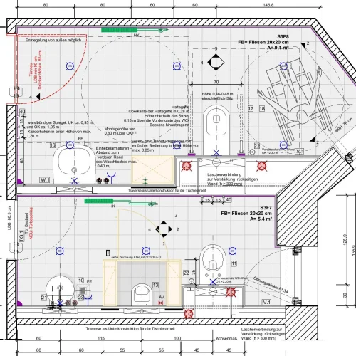
Unsere Konstruktionszeichnungen unterstützen die Umsetzung von Bauprojekten, indem sie präzise und verständliche Visualisierungen von Bauteilen und Strukturen bieten.
Details zu den Leistungen:
- Anfertigung von technischen Zeichnungen für spezifische Bauteile und Konstruktionen.
- Visualisierung komplexer Tragwerks- oder Fassadenelemente in 3D.
Ihr Nutzen:
- Klarheit und Verlässlichkeit für Bauunternehmen und Fachhandwerker.
- Unterstützung der Planungsbeteiligten durch exakte Zeichnungen und Modelle.
Technische Fähigkeiten:
- Verwendung von CAD- Tools wie AutoCAD und Nemetschek Allplan.
- Export in druckfähige Formate oder digitale Ansichten für CNC- gesteuerte Prozesse.

Wir erstellen detaillierte 3D- Modelle mit modernster BIM- Software, um eine nahtlose Planung und Koordination zwischen allen Projektbeteiligten zu gewährleisten. Unsere Modelle dienen als zuverlässige Basis für Bauprozesse und bieten umfassende Einblicke in Geometrie, Material und Mengen.
Was wir anbieten:
- Erstellung komplexer 3D- BIM- Modelle für Neubauten und Bestandsgebäude.
- Integration von Informationen wie Materialien, Bauelementen und Zeitplänen.
- Unterstützung bei der Abstimmung zwischen Architekten, Ingenieuren und Fachplanern.
Warum BIM wichtig ist:
- Reduktion von Planungsfehlern durch genaue Simulationen.
- Verbesserung der Zusammenarbeit durch zentrale Modellnutzung.
Technische Tools:
- Autodesk Revit, Graphisoft ArchiCAD, Nemetschek Allplan.
- Datenexporte für IFC und andere Formate zur Zusammenarbeit mit externen Partnern.

Wir unterstützen Sie bei der Entwicklung und Dokumentation von Entwurfs- und Wettbewerbsplänen. Dabei setzen wir auf kreative und zugleich umsetzungsorientierte Lösungen.
Unsere Leistungen im Detail:
- Erstellung von Konzeptstudien und Visualisierungen zur Veranschaulichung der Entwurfsidee.
- Präzise Planunterlagen und Präsentationsmaterialien für Wettbewerbsbeiträge.
Warum uns wählen?
- Kombination aus Kreativität und technischer Präzision.
- Vertrautheit mit Anforderungen und Richtlinien für Wettbewerbe.
Zusätzliche Unterstützung:
- Erstellung von Moodboards und Materialstudien.
- Begleitung durch alle Phasen der Entwurfsentwicklung.
Ihr Schlüssel zu erfolgreicher Planung
Von der ersten Idee bis zur Umsetzung bieten wir umfassende Unterstützung in allen Projektphasen. Mit präzisen 2D- und 3D- BIM- Modellen, detaillierten Ausführungsplänen und kreativen Entwürfen sichern wir höchste Effizienz und Qualität. Unser Ziel: optimale Zusammenarbeit und die Verwirklichung Ihrer Visionen – präzise, zuverlässig und nachhaltig.
Unsere Referenzen
Häufig gestellte Fragen:
Mit welchen Programmen arbeitet Ihr?
Wir nutzen führende BIM- und CAD- Softwarelösungen wie Autodesk Revit, Graphisoft ArchiCAD, Nemetschek Allplan und Vectorworks, um Ihre Projekte präzise und effizient zu planen. Diese Programme ermöglichen uns, alle Anforderungen Ihrer Planung zu erfüllen und eine nahtlose Zusammenarbeit mit allen Projektbeteiligten sicherzustellen.
Welche Formate könnt Ihr liefern?
Wir liefern Ihre Planunterlagen in den gängigen Formaten wie DWG, IFC, PDF, und DXF. Darüber hinaus können wir
Modelle in 3D- Formaten für die Visualisierung oder für den Einsatz in CNC- gesteuerten Prozessen bereitstellen.
Wie verläuft ein Projekt mit Euch?
Der Prozess beginnt mit einem ersten Gespräch, in dem wir Ihre Bedürfnisse und Ziele besprechen. Anschließend erstellen wir ein detailliertes Angebot und einen Zeitplan. Während des gesamten Projekts arbeiten wir eng mit Ihnen zusammen und liefern Ihnen regelmäßige Updates. Unsere Leistungen reichen von der Entwurfs- und Wettbewerbsplanung bis hin zur Ausführungs- und Detailplanung. Am Ende erhalten Sie präzise Modelle, Zeichnungen und Dokumentationen.
Können wir Euch für einzelne Leistungsphasen beauftragen?
Ja, wir bieten eine flexible Unterstützung für alle Leistungsphasen des Projekts. Sie können uns für spezifische Phasen wie Entwurfs-, Ausführungsplanung oder BIM- Modeling beauftragen oder für das gesamte Projekt von Anfang bis Ende.
Wie schnell könnt Ihr ein Projekt starten?
Nachdem wir die Projektanforderungen und die vertraglichen Details geklärt haben, können wir in der Regel innerhalb von 1-2 Werktagen mit der Arbeit beginnen, je nach Umfang und Komplexität des Projekts.
Welche Vorteile bietet BIM für mein Projekt?
BIM ermöglicht eine detaillierte und präzise Modellierung des Projekts, was Fehler und Missverständnisse minimiert. Es fördert die Zusammenarbeit zwischen allen Projektbeteiligten und stellt sicher, dass alle Aspekte des Projekts von Anfang an berücksichtigt werden. So erhalten Sie ein transparentes, effizientes und kostensparendes Projekt.
















